Porte métallique coupe-feu
La solution de référence pour la sécurité incendie
Portes certifiées EI30 à EI120 (PV) – 1 vantail / 2 vantaux
Si vous disposez d’un CCTP ou d’un tableau de portes, transmettez-nous les éléments essentiels
(EI, dimensions, cloison, accessoires) : nous vous orienterons vers une configuration conforme et certifiée.
Portes coupe-feu métalliques : EI30 à EI120
Les portes coupe-feu métalliques sont conçues pour compartimenter les bâtiments et protéger les personnes en cas d’incendie. Chez SODIFF, nous proposons des solutions EI30, EI60, EI90 et EI120 adaptées aux ERP, au tertiaire et à l’industrie. Chaque produit est livré avec son procès-verbal (PV) et respecte les normes en vigueur (EN 1634-1). Marquages selon la gamme et la configuration.
Nos portes sont disponibles en version standard (dimensions et options courantes) ou sur-mesure pour répondre à toutes les contraintes de chantier : 2 vantaux, imposte pleine ou vitrée, DAS, oculus, contrôle d’accès, grille de ventilation, finitions RAL spécifiques et plus encore. Utilisez notre configurateur pour chiffrer en quelques clics.
Pour aller plus loin selon le niveau coupe-feu recherché, consultez aussi nos pages dédiées : porte métallique EI30 et porte métallique EI60.
Portes en stock vs Portes sur‑mesure : comment choisir ?
Pour gagner du temps et optimiser votre budget, choisissez la bonne option :
| Option | Avantages | Quand l’utiliser |
|---|---|---|
| Portes en stock |
Disponible rapidement (2 à 3 semaines) selon état des stocks. Dimensions standard (1 ou 2 vantaux) avec finitions RAL 7016/7035/9016. PV et attestation fournis. Montage facile.
Dans notre configurateur, le bouton « Dimensions standard » permet, selon la configuration choisie, d’afficher les dimensions standard disponibles (elles peuvent varier selon les fabricants). Exemple : porte 2140 x 990 en RAL 7035, selon disponibilité. Toutes les gammes ne sont pas tenues en stock. |
Chantiers récurrents, ERP et bâtiments tertiaires sans contraintes particulières. Idéal pour les budgets serrés et les travaux urgents. |
| Portes sur mesure |
Délai sur-mesure : 6 à 7 semaines (et environ 8 semaines en cas d’imposte). Adaptation aux réservations (largeur/hauteur), choix de l’imposte, du DAS, des oculus et grilles, finitions RAL. PV spécifique.
Selon la gamme, le sur-mesure est proposé par pas de 10 mm. |
Projets avec contraintes (grande hauteur, imposte, 2 vantaux), besoin de couleurs spécifiques ou accessoires particuliers (gâche électrique, anti-panique premium). |
En cas de doute, nos experts sont à votre écoute pour vous orienter. Une porte sur‑mesure sécurise le chantier dès qu’il sort des dimensions ou options standard.
Vidéos : découvrez nos configurateurs
Pour gagner un temps précieux, SODIFF met à votre disposition des configurateurs en ligne dédiés aux professionnels.
En quelques clics, vous pouvez chiffrer et personnaliser vos portes métalliques coupe-feu et vos portes bois techniques, en toute autonomie, avec un résultat instantané.
Un devis en ~5 minutes : vous configurez, vous ajustez vos options si besoin, et vous obtenez votre chiffrage immédiatement.
Vous pouvez aussi créer votre compte gratuitement (environ 5 minutes) pour profiter d’un espace ultra sécurisé et retrouver facilement vos devis, vos commandes et leur suivi.
Et bien sûr, on sait que les pros n’ont pas toujours le temps. Si vous avez besoin de conseils ou de technicité sur une porte coupe-feu (conformité, options, pose, contraintes chantier),
vous pouvez simplement nous transmettre votre demande de prix, un CCTP ou un tableau de portes : on vous accompagne et on vous oriente vers la configuration adaptée.
Découvrez-les en vidéo.
Tutoriel – Configurateur de porte métallique coupe-feu
Apprenez à configurer votre porte EI30, EI60, EI90 ou EI120, avec les options anti-panique, contrôle d’accès, 1 ou 2 vantaux, imposte, coloris RAL et plus encore.
👉 Configurer ma porte métallique : Accéder au configurateur.
Tutoriel – Configurateur de portes bois techniques
Notre configurateur bois permet de chiffrer des portes acoustiques, coupe-feu et ERP. Indispensable pour les projets mixtes (porte métal + porte bois).
Qu’est-ce qu’une porte métallique coupe-feu ?
Une porte coupe‑feu métallique est conçue pour résister à l’incendie pendant une durée donnée et reconstituer un compartimentage efficace entre deux zones. Elle joue un rôle essentiel dans la protection des personnes en retardant la propagation des flammes et des fumées. La performance finale dépend autant de la porte que de la pose conforme (supports, calfeutrement, fixations, jeux). Chaque porte est livrée avec un PV qui précise son domaine d’emploi.
Comprendre les classes EI (30, 60, 90, 120)
Le marquage EI exprime la résistance au feu en minutes. La classe requise dépend de l’usage du local, du compartimentage et des prescriptions réglementaires.
EI1 et EI2 : la nuance (isolation “I”)
La classification EI peut être déclinée en EI1 et EI2. La différence porte sur le niveau d’exigence du critère I (isolation thermique côté non exposé). EI1 est généralement considéré comme plus strict que EI2 sur l’isolation (contrôles/mesures plus sévères, notamment près des bords).
- EI1 : exigence d’isolation plus stricte que EI2. Exemples de description fabricants : contrôle de température incluant des points proches du bord (ex. mesure indiquée à 25 mm du bord sur certains documents).
- EI2 : exigence d’isolation moins stricte ; certaines descriptions indiquent des points de mesure plus éloignés du bord (ex. thermocouples à 100 mm du bord pour EI2).
- Mise en œuvre : on trouve aussi des explications “marché” indiquant que les blocs-portes classés EI2 peuvent être soumis à des conditions sur les parois/revêtements adjacents (ex. M1 ou B-s3-d0 sur 100 mm autour du dormant), alors que EI1 serait présenté sans cette condition.
EI30 : résistance au feu 30 minutes (protection standard)
- Correspond à une porte coupe-feu assurant une résistance au feu de 30 minutes.
- Usages : circulations, bureaux, locaux techniques modérés.
- Avantage : budget optimisé, nombreuses options compatibles (oculus, anti-panique, contrôle d’accès).
EI60 : résistance au feu 60 minutes (standard « chantier » en ERP et industrie)
- Correspond à une porte coupe-feu assurant une résistance au feu de 60 minutes.
- Utilisé dans les ERP pour compartimenter les circulations principales, cages d’escalier, locaux électriques.
- Augmente le délai d’évacuation et sécurise les voies.
EI90 et EI120 : résistance au feu 90 à 120 minutes (compartimentage renforcé)
- Correspond à une résistance au feu de 90 minutes (EI90) ou 120 minutes (EI120).
- Pour zones à risques (stockage, industrie, parkings).
- Configurations plus encadrées : dimensions max, imposte, 2 vantaux ou accessoires doivent être couverts par le PV.
Choisir rapidement la bonne configuration
| Type de besoin | Classe EI conseillée | Configuration typique | À surveiller |
|---|---|---|---|
| Circulations tertiaires / bureaux | EI30 | 1 vantail, ferme‑porte, serrure 1 point | Sens d’ouverture, finition RAL, éventuellement contrôle d’accès |
| ERP / circulations principales | EI60 | 1 ou 2 vantaux, anti‑panique, ferme‑porte | Barre anti‑panique et béquille extérieure compatibles PV |
| Grand passage logistique | EI60 à EI120 | 2 vantaux (semi‑fixe + actif), sélecteur de fermeture | Coordination 2 vantaux, seuil PMR, jeux |
| Hauteur hors standard | EI30 à EI120 | Imposte pleine ou vitrée | Hauteur totale, vitrage coupe‑feu, fixations |
| Maintien ouvert en exploitation | EI30 à EI120 | DAS + ventouse + ferme‑porte | Alimentation SSI, essais périodiques, accessoires compatibles |
Normes, PV et marquages : points clés
Chaque porte est accompagnée d’un PV (procès-verbal d’essai) précisant son domaine d’emploi : support autorisé (béton, cloison, maçonnerie), dimensions maximales, accessoires compatibles (ferme‑porte, oculus, grille, DAS, imposte). La conformité repose sur :
- La porte elle‑même (classe EI, structure, isolation).
- Les accessoires : serrures, anti‑panique, contrôle d’accès, grilles de ventilation.
- La pose : type de support, calfeutrement, fixations, jeux. L’installateur doit suivre le PV pour garantir la performance.
PV fournis, marquages selon la gamme et la configuration. Ces documents attestent du respect des normes de résistance au feu et des règles de sécurité des issues de secours.
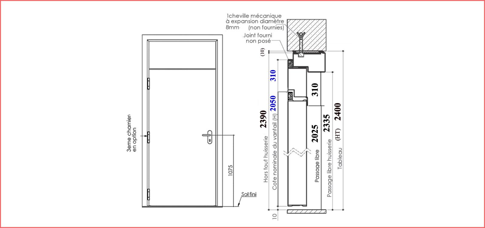
Schémas explicatifs
Pour bien comprendre la composition d’une porte coupe‑feu et les points clés de la pose, voici des schémas techniques.
Configurations spécifiques : 2 vantaux, imposte, DAS
Porte coupe-feu 2 vantaux
La configuration 2 vantaux permet un large passage pour la logistique ou l’accessibilité PMR. Le vantail semi‑fixe reste verrouillé et se libère en cas d’utilisation. La fermeture doit être coordonnée via un sélecteur et des ferme‑portes adaptés pour assurer l’étanchéité.
Imposte pleine ou vitrée
L’imposte permet d’ajuster la hauteur totale sans modifier les vantaux. Elle peut être pleine (même structure que le vantail) ou vitrée (vitrage coupe‑feu). Vérifiez que le PV couvre l’imposte et respectez les prescriptions de pose.
DAS (Dispositif Actionné de Sécurité)
Le DAS maintient la porte ouverte pour faciliter la circulation et la referme automatiquement en cas d’alarme incendie. Il se compose d’une ventouse, d’un ferme‑porte et d’une commande asservie au SSI. Idéal dans les ERP et les zones logistiques.
Options et accessoires disponibles
Pour adapter votre porte à chaque usage, de nombreuses options sont disponibles (sous réserve de PV) :
- Anti‑panique : indispensable pour les issues de secours. Barre horizontale, béquille extérieure, sortie libre.
- Contrôle d’accès : gâche ou serrure électrique, badge, digicode. À vérifier selon sens d’évacuation.
- Oculus / vitrage : vision de part et d’autre, avec vitrage coupe‑feu compatible.
- Grilles de ventilation : pour locaux techniques (EI30 ou EI60 en intérieur). Attention : une grille intumescente est sensible aux UV et à l’eau ; nous ne la proposons pas en extérieur ni en zone humide.
- Finitions RAL : teintes standard (7016, 7035, 9016) et toutes couleurs RAL sur demande. Intérieur/extérieur identiques ou différenciés.
- Autres accessoires : seuil PMR, ferme-porte invisible, panneaux isophoniques, ventouse de condamnation 500 kg, kit acoustique, plinthe automatique, etc.
Exemples de portes coupe-feu courantes
Voici quelques exemples de configurations réelles posées sur chantier. Chaque lien ouvre la fiche produit correspondante.
- Bloc‑porte métallique EI30 – 1 vantail – 990 x 2050 – RAL 7035
- Bloc‑porte métallique EI30 – 1 vantail – 990 x 2140 – RAL 7016
- Bloc‑porte métallique EI30 – 1 vantail – 990 x 2140 – RAL 9016
- Bloc‑porte EI30 1 vantail – 1200 x 2050 – RAL 1013 (bâti Z)
- Bloc‑porte EI60 1 vantail – 1000 x 2100 – RAL 7016
Pour plus d’exemples ou un besoin précis, utilisez notre configurateur ou consultez notre guide de choix et notre FAQ.
Configurez en ligne ou envoyez votre tableau de portes : on valide la bonne configuration (EI, dimensions, cloison, options).
FAQ – Questions fréquentes
Besoin d’aide avec votre CCTP ou tableau de portes ?
Envoyez-nous votre CCTP, tableau de portes ou plans d’exécution : nos équipes analysent les éléments essentiels (classe EI, dimensions, type de cloison, accessoires) et vous orientent vers une configuration certifiée. Vous pouvez également réaliser un chiffrage rapide grâce à notre configurateur.
